PROJETOS SOBRE NÓS CONTATO
SESC MOGI DAS CRUZES
INSTITUCIONAL    CONCURSOS   
CONCURSO - Menção Honrosa
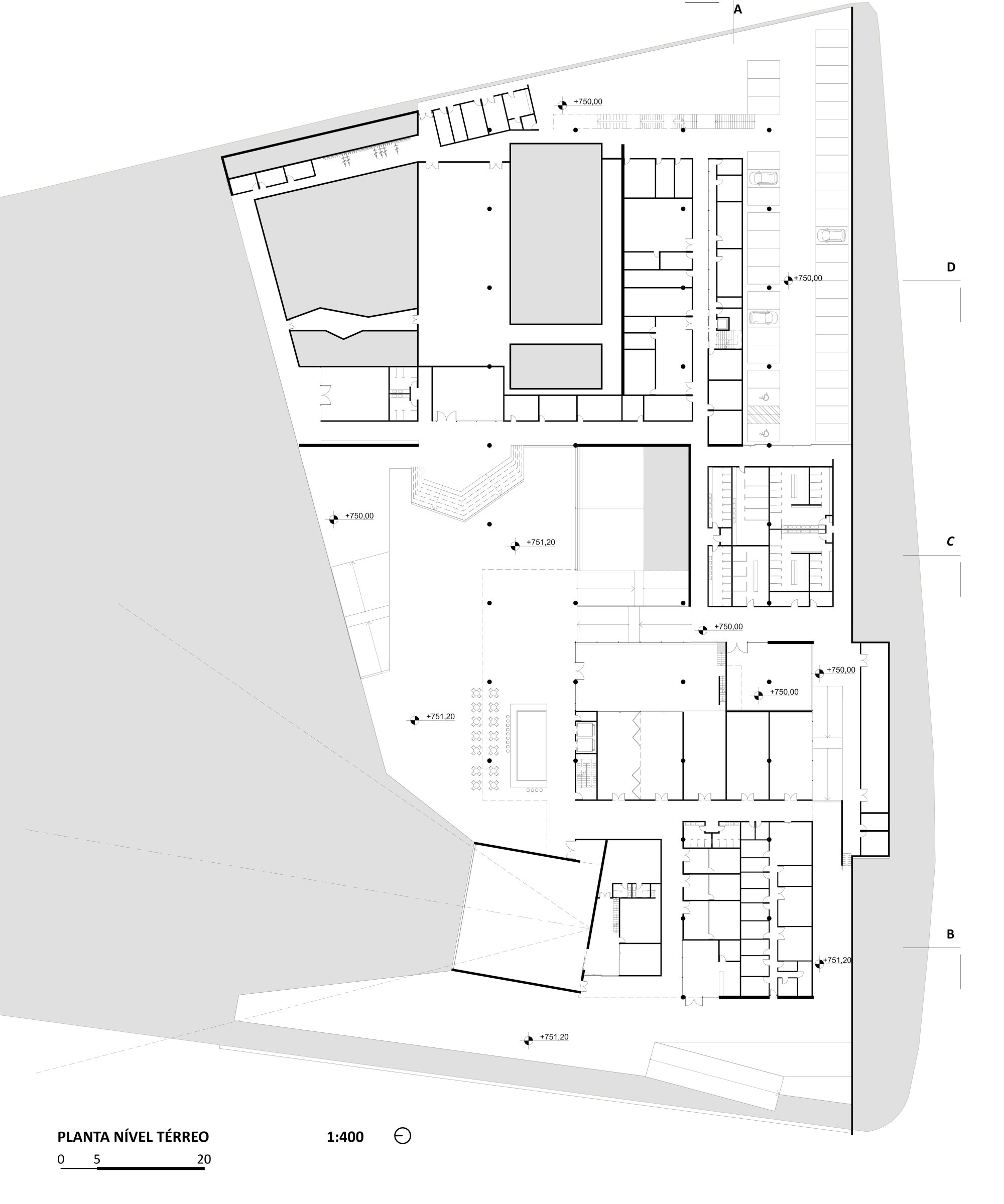
A localização do SESC Mogi apresenta condições privilegiadas, mas distintas: A face voltada para o a Rodovia Prof. Alfredo Rolim de Souza, importante eixo viário com grande movimentação, é servida por linhas de ônibus, permitindo fácil acesso e conexões com o Shopping, a estação de trem, e outras atividades que se distribuem nesta via. Por outro lado a rodovia tem trânsito e ruído intenso. Já as outras duas ruas que contornam o lote tem movimento exclusivamente local, de baixíssima intensidade. Quanto às demandas internas do SESC, a análise cuidadosa do programa solicitado e o desejo de implantar uma Unidade Parque levaram a duas estratégias de implantação bastante marcantes:Em plano, optou-se por agrupar o corpo edificado junto à Rodovia, de forma a marcar a presença do edifício na paisagem urbana, expondo as atividades internas para o grande número de pessoas que transitam no local. Por outro lado, além de liberar extensa área para o parque, o conjunto edificado passa a funcionar como uma barreira acústica, protegendo o interior do lote do ruído da avenida, criando uma atmosfera agradável para as atividades ao ar livre. Verticalmente, optou-se por dispor as quadras todas, inclusive as descobertas, no pavimento mais alto do conjunto construído, de forma a estender a superfície do parque por sobre a área edificada, o que trouxe duas vantagens:
1. desobstruiu o parque dos programas esportivos cercados, e 
2. essa extensa laje de programa esportivo conforma uma grande sombra, sob a qual são dispostos os programas técnicos, administrativos e culturais, que passam a se abrir de maneira franca para a área verde.

Local: Mogi das Cruzes, SP
Área Terreno: 26.857,28m²
Área Construída: 18.375,4m²

Equipe:Baldomero NavarroJoão Paulo DaolioBeatriz Nachtergaele
 Bruna Akamine Inoue
 Kawani Yuri Nishimura
 Lucas Nascimento Saito
 Sophia Krasilcic Minkoves
Paisagismo:Patricia Santana